Lavin Estates | Modern newly built villa with private pool and large…
Close Menu
Menü
ENG / DEU / SWE
  • Modern newly built villa with private pool and large sea view terrace

Details Bilder

473m2 5 Schlafzimmer in Sol de Mallorca

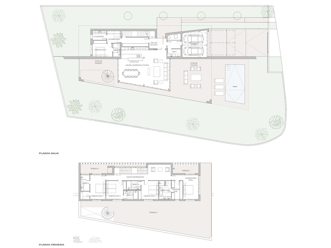
In the quiet and pleasant residential area of Sol de Mallorca, about 20 minutes from Palma, the “Plein Soleil III” project is currently under construction, featuring 3 modern detached villas with private pools. While all share the architect’s signature style, each villa is unique with a different layout. They combine modern, clean-lined architecture with typical island elements such as natural stone walls. High ceilings, floor-to-ceiling doors and large windows create a seamless connection between indoor and outdoor spaces. This villa offers 358 m² of built interior space over two levels, with 5 bedrooms, all with en-suite bathrooms, fitted wardrobes and mostly access to a large sea view terrace and/or additional terraces. The upper floor hosts the master suite with walk-in wardrobe and three further bedrooms, while the fifth bedroom is located on the ground floor. The spacious living and dining area with integrated kitchen, equipped with island and Gaggenau appliances, opens onto covered and open terraces and the private garden with pool. Additional features include: utility room with Miele appliances, guest WC, TV/lounge area on the upper floor, hot/cold air conditioning, underfloor heating, heat pump, solar panels, large double-glazed Schüco sliding windows, limestone flooring, KNX home automation, alarm system and a garage for 2 cars. Nearby are coves, leisure facilities, golf courses, shops and international schools. Puerto Portals and Port Adriano are just 10 minutes away, and the airport is 30 minutes by car. Sol de Mallorca offers year-round living in a peaceful setting in the sought-after southwest of the island.
  • Wohnfläche

    473m2
  • Grundstück

    1202m2
  • Schlafzimmer

    5
  • Immobilien ID

    048U8C
  • Badezimmer

    5
  • Preis

    4.650.000 €

Bei Interesse lassen wir Ihnen gerne nähere Informationen, Grundrisse sowie weitere Fotos zukommen oder vereinbaren einen individuellen Präsentationstermin.

Wir freuen uns von Ihnen zu hören!

Ihre Nachricht wurde empfangen

Vielen Dank für Ihre Kontaktaufnahme. Wir schätzen Ihr Interesse an unseren Immobilien sehr! Ein Mitglied unseres Teams wird sich so schnell wie möglich bei Ihnen melden.

Please amend the following issues:

    Aus Diskretionsgründen gegenüber unserer Eigentümer können wir nicht die genaue Adresse anzeigen. Hier sehen Sie die Gegend, wo sich die Immobilie befindet. Bitte kontaktieren Sie uns für weitere Informationen.

    Diskreter Immobilienverkauf

    Unser Angebot an Immobilien ist viel größer als wir es Ihnen auf unserer Internetseite zeigen können. Bei vielen Immobilien steht der Wunsch nach einer diskreten Vermarktung im Vordergrund. Mit unserem VIP-Bereich haben wir die Möglichkeit für Verkäufer und Käufer geschaffen, diskret zu verkaufen oder zu kaufen.
    Hier erhalten Sie ihren VIP Zugang zu Immobilien, die nicht öffentlich und nur diskret vermarktet werden.

    Wir sichern Ihnen größtmögliche Diskretion zu und wissen Ihr Vertrauen zu schätzen.

    Ihre Nachricht wurde empfangen

    Vielen Dank für Ihre Kontaktaufnahme. Wir schätzen Ihr Interesse an unseren Immobilien sehr! Ein Mitglied unseres Teams wird sich so schnell wie möglich bei Ihnen melden.

    Please amend the following issues: