LE-Homes | Es Jonquet New Project
Close Menu
Menu
ENG / DEU / SWE
  • Es Jonquet New Project - Sold

Information Images

95m2 3 Bedrooms in Santa Catalina - Sold

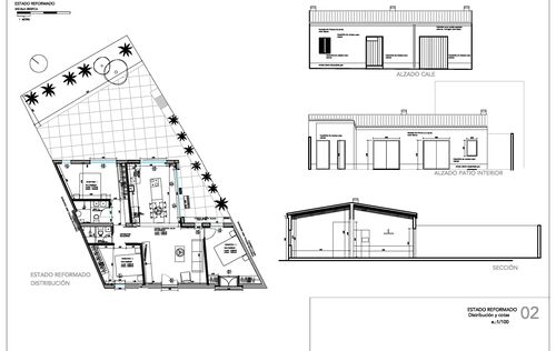
Welcome to the beautiful barrio of Santa Catalina and, within it, the former fishing quarter of Es Jonquet. In these cobblestoned streets, we are offering you the chance to purchase a newly renovated residence. The property, all on one level, will offer an open-plan living room, dining and kitchen, a master bedroom with en suite bathroom and two guest bedrooms and a separate bathroom. Large doors will open on to a private and spacious patio with approx. 40m2 and garden area, perfect for entertaining. All of today's creature comforts and traditional characteristics will be included: from stone flooring, beautiful joinery, ducted air conditioning and underfloor heating. Parking will be available for permanent residents within the area. Just a few steps from the entrance door you have access down to the Paseo Maritimo sea front, the fresh food market and restaurants of Santa Catalina and within 5 minutes the Old Town of Palma. Approximate completion April 2025.
  • Living Area Approx

    95m2
  • Plot Size

    185m2
  • Bedrooms

    3
  • Property ID

    02X2KI
  • Bathrooms

    2
  • Price

    Sold


We'd love to hear from you!

Thank you for reaching out. Your message has been received. We appreciate every request and will work hard to provide you with the information you need as soon as possible.

Please amend the following issues:

    Due to discretion of the property owner we can't point out the exact address, but this gives you an indication of the area. Please contact us for more information.

    Discreet Property Listings

    We would say that we are the experts on just frontline properties for sale in Mallorca. We have been one of the market leaders since 2005 therefore we can introduce you to any property that is for sale on both Mallorca & Ibiza. Many of our properties we have are not listed online due to discretion. If you want to view our discreet listings as well, please fill in this form.

    We ensure you the highest level of confidentiality. We also guarantee that any information provided will not be forwarded to third parties.

    Thank you for reaching out. Your message has been received. We appreciate every request and will work hard to provide you with the information you need as soon as possible.

    Please amend the following issues: