LE-Homes | Renovation project in a good location
Close Menu
Menu
ENG / DEU / SWE
  • Renovation project in a good location - Sold

Information Images

420m2 4 Bedrooms in Santa Ponsa - Sold

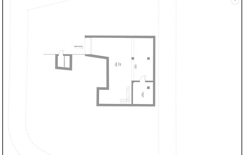
This well-maintained villa is located in the sought-after residential area of Nova Santa Ponsa. Currently, the villa is still in its original condition. There is an approved renovation project, which is shown in the images. The purchase price includes the villa in its original state, as well as the plans for the new owners to carry out the renovation. The villa offers a lot of privacy, good sun orientation, and a beautiful panoramic view of the mountains and, from the upper floor, over the bay of Santa Ponsa. The large pool is south-facing, allowing you to enjoy the sun all day long. However, the covered terrace also offers shady, comfortable spots. The planned villa is spread over three levels. The basement has two garage spaces, storage space, and technical rooms. On the ground floor, there is an open kitchen with a living-dining area and one bedroom with an en-suite bathroom, and on the upper floor, there are three more bedrooms, each with its own en-suite bathroom.
  • Living Area Approx

    420m2
  • Plot Size

    990m2
  • Bedrooms

    4
  • Property ID

    02YKZ8
  • Bathrooms

    4
  • Price

    Sold


We'd love to hear from you!

Thank you for reaching out. Your message has been received. We appreciate every request and will work hard to provide you with the information you need as soon as possible.

Please amend the following issues:

    Due to discretion of the property owner we can't point out the exact address, but this gives you an indication of the area. Please contact us for more information.

    Discreet Property Listings

    We would say that we are the experts on just frontline properties for sale in Mallorca. We have been one of the market leaders since 2005 therefore we can introduce you to any property that is for sale on both Mallorca & Ibiza. Many of our properties we have are not listed online due to discretion. If you want to view our discreet listings as well, please fill in this form.

    We ensure you the highest level of confidentiality. We also guarantee that any information provided will not be forwarded to third parties.

    Thank you for reaching out. Your message has been received. We appreciate every request and will work hard to provide you with the information you need as soon as possible.

    Please amend the following issues: